Hausdetails

Haubern

  • Satteldachhaus
  • 24° Dachneigung
  • 170 cm Kniestock
  • 124 m² Wohnfläche
  • 69 m² Wohnfläche EG
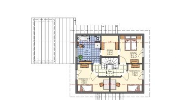
  • 55 m² Wohnfläche DG

Haubern

Bei unserem Haus Haubern handelt es sich um einen modernen Zweigeschosser mit einem erhöhten Kniestock von 1,70 m, der das Dachgeschoss voll ausnutzt.
Die lichtdurchflutete Bauweise mit den meist bodentiefen Fenstern lässt das Hausinnere hell und freundlich wirken. Der große, offen gestaltete Wohn- und Essbereich mit dem verglasten Erker bietet einen optimalen Zugang zur Terrasse. Mit Speisekammer, Hauswirtschaftsraum und Garage bietet dieses Haus ausreichend Abstellfläche für die alltäglichen Dinge.

Über die zentral gelegene Treppe gelangt man in das Dachgeschoss, wo sich der Rückzugsort des Hauses befindet. Neben zwei nahezu gleichgroßen Kinderzimmern, befindet sich hier ein Elternschlafzimmer mit einer angrenzenden Ankleide, von woaus man direkten Zugang zu dem modernen Bad hat.
Durch diese optimale Raumausnutzung findet diese Gebäudekonstruktion auch auf kleinen Grundstücken sehr gut Platz.

Ausstattung

  • Ankleide
  • Gästebad
  • 2. Kinderzimmer
  • Offene Küche

Zurück

Gestaltung & Technik: Livinglemon.com
Es werden notwendige Cookies, Google Fonts, Google Maps, OpenStreetMap, Youtube und Google Analytics geladen. Details finden Sie in unserer Datenschutzerklärung und unserem Impressum.